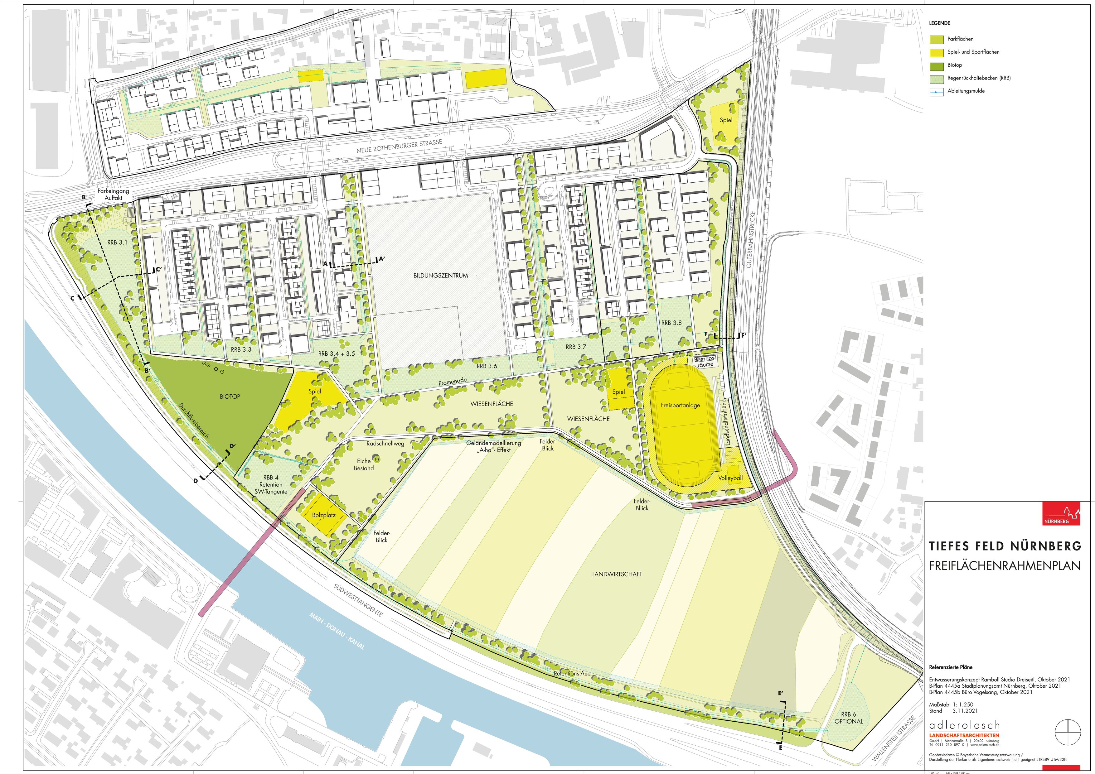
Mit der Baugebietsentwicklung "Tiefes Feld", Bebauungsplan Nr. 4445 ff., soll ein neues Stadtquartier im Südwesten der Stadt entstehen. Im Rahmen der städtebaulichen Entwicklung sollen ca. 1.700 Wohneinheiten geschaffen werden.
Darüber hinaus werden Flächen für den Einzelhandel, Dienstleistungen, sozialer Infrastruktur (Bürgerzentrum, Kitas, Gymnasium, Grundschule, etc.) und öffentliche Freianlagen (Landschaftspark und Quartiersplatz) entstehen.
Durch die Planung müssen verschiedenste Herausforderungen beachtet und geheilt werden. Unter anderem die räumlich abgegrenzte Lage des Tiefen Feldes, welche funktional und visuell von der Südwesttangente sowie dem Main-Donau-Kanal im Westen und der Strecke Nürnberg-Rangierbahnhof nach Fürth-Güterbahnhof im Osten bestimmt wird, die derzeit eine Verbindung der angrenzenden Stadtteile Kleinreuth und Großreuth verhindern.

Flächengröße ca. 65 ha
ca. 1.700 Wohneinheiten
ca. 3.500 Einwohner
Die geplante Erweiterung der U-Bahn Strecke U3 mit einer neuen Haltestelle „Kleinreuth“ bietet die große Chance, durch ein effizientes Fuß- und Radwegenetz und der Entwicklung einer Stadt der kurzen Wege den Stellenwert des Automobils zur Erschließung des neuen Stadtteils zu minimieren.
Mit der neuen Entwicklung werden sich der Charakter Kleinreuths und dessen Umfeld verändern. Kleinreuth kann sich nun hin zu einem Lebens- und Arbeitsort mit attraktiven öffentlichen Freiräumen entfalten. Durch den Ausbau der U-Bahn-Haltestelle, sowie den Ausbau der „Neuen“ Rothenburger Straße und der städtebaulichen Entwicklung soll das Gebiet ein beliebter Wohnstandort werden. Gleichzeitig werden die Planungen die bestehenden Lärmbelastungen durch die Güterzugstrecke und die Südwesttangente berücksichtigen und durch Schallschutzmaßnahmen minimieren. Durch die oberflächige Ableitung von Regenwasser und Rückhaltung im Gebiet kann zudem dem Schwammstadtprinzip Rechnung getragen werden und das Mikroklima verbessert werden.
Durch den Bau der „Neuen“ Rothenburger Straße soll die Verkehrsbelastung an der „Alten“ Rothenburger Straße abnehmen. Dies ermöglicht eine Aufwertung des Straßenbilds und eine Weiterentwicklung der südlich an die „Alte“ Rothenburger Straße grenzenden Flächen.
Zusammen mit dem Ausbau der U-Bahnlinie U3 und dem geplanten Verlauf der „Neuen“ Rothenburger Straße ist das Tiefe Feld ein wichtiger Bestandteil der städtebaulichen Entwicklung im Südwesten Nürnbergs.

Für die o.g. Baugebietsentwicklung müssen mehrere komplexe Verfahren parallel durchgeführt und berücksichtigt werden:
- Bauleitplanung (Flächennutzungsplan und Bebauungspläne)
- Bodenordnung (Umlegung)
- Planfeststellung (U-Bahn, Neue Rothenburger Straße und DB-Güterverkehrstrasse)
Die Planungsverfahren und deren anschließende Realisierungen werden koordiniert und aufeinander abgestimmt. Zudem müssen die Belange der dortigen landwirtschaftlichen Betriebe und des Artenschutzes mit der Baugebietsentwicklung in Einklang gebracht werden.


