Nuernberg, 26. September 2008: Kettensteg

Servicebetrieb Öffentlicher Raum

<<<<<<< HEAD ======= >>>>>>> 9a5092241 (new search v2)

Neugestaltung der Luitpoldstraße abgeschlossen

Luitpoldstraße Ecke Königstraße, Bild © André Winkel / Stadt Nürnberg

Luitpoldstraße eingeweiht

Der Servicebetrieb Öffentlicher Raum Nürnberg (SÖR) hat zusammen mit dem Stadtplanungsamt Nürnberg die Luitpoldstraße zwischen Vorderer Sterngasse und Königstraße sowie einen Teil des Gehwegs in der Königstraße im Umfeld der Klarakirche neugestaltet. Oberbürgermeister Marcus König, Bürgermeister und Erster SÖR-Werkleiter Christian Vogel, Planungs- und Baureferent Daniel F. Ulrich sowie Ralf Spyra von der Regierung von Mittelfranken haben am Dienstag, 12. September 2023, die Straße in der Lorenzer Altstadt der Öffentlichkeit übergeben.

Oberbürgermeister Marcus König, Bürgermeister und Erster Sör-Werkleiter Christian Vogel, Planungs- und Baureferent Daniel F. Ulrich sowie Ralf Spyra von der Regierung von Mittelfranken bei der Einweihung der Luitpoldstraße, Bild © André Winkel / Stadt Nürnberg
v.l.n.r.: Ralf Spyra von der Regierung von Mittelfranken, Oberbürgermeister Marcus König, Bürgermeister und Erster SÖR-Werkleiter Christian Vogel sowie Planungs- und Baureferent Daniel F. Ulrich haben am Dienstag, 12. September 2023, die Straße in der Lorenzer Altstadt der Öffentlichkeit übergeben.

Integriertes Stadtentwicklungskonzept

Mit dem Abschluss der Arbeiten wird die Qualität des öffentlichen Raums verbessert und ein Mehrwert an Aufenthaltsqualität und Atmosphäre geschaffen. Damit erreicht die Maßnahme die Ziele des Integrierten Stadtentwicklungskonzept (INSEK) Altstadt Nürnberg. Das Projekt wird mit Mitteln aus dem Bund-Länder-Städtebauförderungsprogramm „Sozialer Zusammenhalt“ und aus dem Sonderfonds „Innenstadt beleben“ gefördert.

OBM Marcus Koenig © Christine Dierenbach / Stadt Nürnberg

Oberbürgermeister Marcus König

„Durch die Neugestaltung wurde die Luitpoldstraße wieder in einen technisch einwandfreien Zustand versetzt. Die Straße glänzt wieder und man hat das Gefühl, dass hier vor den Restaurants noch nie so viele Stühle und Tische gestanden sind. Aus einer Schmuddelecke ist ein echtes Schmuckstück geworden! Offensichtlich findet die Straße großen Zuspruch bei den Besucherinnen und Besuchern. Darüber hinaus ist es hier auch grüner geworden: Neben sechs Pflanzkübeln werden im Herbst noch drei weitere Bäume gepflanzt.

    Nürnberg kann Stadtgestaltung

    Wir zeigen hier: Nürnberg kann Stadtgestaltung. Ganz herzlichen Dank an die Regierung von Mittelfranken. Ohne diese wertvolle Unterstützung könnten wir solche Baustellen nicht bewältigen.“

    Bürgermeister und erster Werkleiter SÖR Christian Vogel © Christine Dierenbach / Stadt Nürnberg

    Dankeschön für Geduld und Verständnis während der Baustelle

    Bürgermeister und Erster SÖR-Werkleiter Christian Vogel bedankt sich für das Verständnis der Restaurant- und Hotelbetreiber: „Eine Baustelle in der Innenstadt ist nie einfach. Aber die Luitpoldstraße war besonders eng und alle anliegenden Betriebe mussten sich bei der Anlieferungslogistik einiges einfallen lassen. Doch die Bauleitung hat gemeinsam mit allen Anliegern immer wieder gute Lösungen gefunden. Jetzt ist alles fertig und es freut mich, dass Restaurants und Hotels ihre Außenbereiche ebenfalls mit neuen Pflanzkübeln aufgewertet haben.“

      Baureferent Daniel Ulrich © Christine Dierenbach / Stadt Nürnberg

      Planungs- und Baureferent Daniel F. Ulrich:

      „Die Neugestaltung der Luitpoldstraße hat eine sehr lange Planungsgeschichte und zeigt exemplarisch, wie man eine schwierige in eine attraktive Lage verwandeln kann. Nach dem planunsgrechtlichen Willen des Rates zur Veränderung war das Neue Museum gewissermaßen der sichtbare Startschuss für den Wandel. Heute wird der Charakter der Straße nicht mehr von Rotlicht-Etablissements, sondern von Gastronomie, Kultur, Handel und öffentlichem Leben bestimmt.

        1,8 Millionen Fördergelder von Bund und Land

        Die nochmals 1,8 Millionen Fördergelder von Bund und Land und der Beitrag der Stadt Nürnberg in Höhe von einer Million Euro für die letzte Phase, den Ausbau der Straße selbst, sind gut angelegt.“

        Buntes Farbspiel

        Buntes Granitpflaster, Bild © André Winkel / Stadt Nürnberg

        Ralf Spyra von der Regierung von Mittelfranken lobte die neugestaltetete Luitpoldstraße:

        „Die Straße ist wirklich beispielhaft gut geworden. Ich bin schon sehr auf die Fortsetzung in anderen Teilen der Altstadt gespannt. Vor allem das farbliche Zusammenspiel der fünf verschiedenen Granitpflasterarten passt sehr gut zu den historischen Gebäudefassaden. Es ergibt sich eine sehr schöne Wechselwirkung mit den aus unterschiedlichen Bauepochen stammenden Gebäuden.“

        Anderthalbjährige Bauzeit

        Die Baustelle dauerte insgesamt rund anderthalb Jahre. Es wurden rund 3 100 Quadratmeter Granitgroßsteinpflaster verlegt, drei neue Baumstandorte geschaffen, sechs neue Pflanztröge aufgestellt sowie 26 neue Fahrradständer und sechs Senioren-gerechte Sitzbänke aufgestellt.

        Granitpflaster

        Die Luitpoldstraße wird mit einer vollgebundenen Granitpflasterfläche hergestellt. Das bedeutet, dass die Pflastersteine mit Beton verfugt werden, um so einen starken und stabilen Zusammenhalt der Gesamtfläche zu erreichen.

          Gestaltungskonzept

          Vor der Umgestaltung

          In der Luitpoldstraße wurden in den vergangenen Jahren mehrfach Aufgrabungen durchgeführt um große Versorgungsleitungen zu verlegen. Aber auch durch mehrere Gebäudesanierungen waren immer wieder Teile der Straße gesperrt und wurden von schweren Baustellenfahrzeugen befahren. Baustellenverkehr und die allgemein steigende Verkehrsbelastung haben die Luitpoldstraße in einem Zustand hinterlassen, der eine grundlegende Sanierung erforderlich macht.

          Attraktivität erhöhen

          Die Neugestaltung soll die Luitpoldstraße wieder in einen technisch einwandfreien Zustand versetzten und gleichzeitig die Attraktivität dieser durch Gastronomie, Hotels und unterschiedliche Geschäfte geprägten Straße erhöhen.

          Technische Ausführung

          Die Luitpoldstraße wird auf der gesamten Fläche zwischen der Königstraße und der Vorderen Sterngasse gemäß dem städtischen Gestaltungshandbuch für den öffentlichen Raum aufgewertet.

          Pflasterbelag

          Neuer Pflasterbelag in der Luitpoldstraße, Bild © SÖR / Stadt Nürnberg
          Demnach werden in der Altstadt mit historischer Bebauung die Straßenbeläge einheitlich, mit einer Mischung aus hellgrauen, dunkelgrauen, gelben und rötlichen Granitgroßsteinpflaster gestaltet.

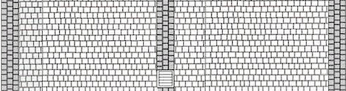
          Pflasterverband - Verlegemuster

          Pflasterverband Altstadt, Bild © Stadt Nürnberg
          Die Pflastersteine werden in Reihen, durchgängig von Gebäude zu Gebäude, ohne Belagswechsel verlegt. Die Entwässerung wird ebenfalls erneuert und erfolgt dann über eine dreizeilige Mittelrinne aus Granitpflaster.

          Baumbestand, Fahrradbügel, Sitzbänke

          Der bereits vorhandene Baumbestand wird durch drei neue Bäume ergänzt. Zudem sind auf der Nordseite der Luitpoldstraße drei neue Pflanzbeete vorgesehen. Auf der Südseite der Luitpoldstraße werden insgesamt 26 Fahrradbügel sowie sechs seniorengerechte Sitzbänke eingebaut. Die Straßenbeleuchtung wird ebenfalls erneuert.

            Förderung

            Die Maßnahme wird mit Mitteln aus dem Bund-Länder-Städtebauförderungsprogramm „Sozialer Zusammenhalt“ und aus dem Sonderfonds „Innenstadt beleben“ gefördert.

            Städtebauförderung, Bild © Bundesministerium für Wohnen, Stadtentwicklung und Bauwesen

            Mehr zum Thema